Budapest, XII.kerület
 

Ingatlan adatai
Irányár: 469 000 000 Ft
Típus: ház
Kategória: eladó
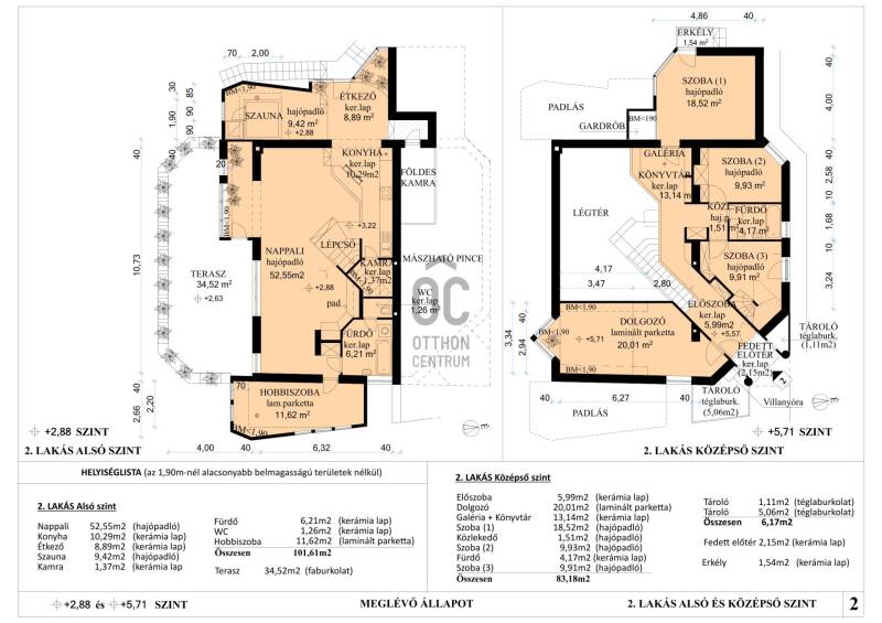
Alapterület: 282 m2
Fűtés: gáz (cirko)
Állapota: -
Szobák száma: 8
Építés éve: 1975
Szintek száma: -
Telekterület: 999 m2
Kert mérete: 999 m2
Erkély mérete: -
Felszereltség: -
Parkolás: -
Kilátás: -
Egyéb extrák:  
-
Részletes leírás
Eladó különleges családi ház Budán, örök panorámával és természetközeli életérzéssel !A Budai-hegyek egyik legvarázslatosabb pontján, a XII. kerület zöldövezeti részén, közvetlenül a természetvédelmi terület határán kínálunk megvételre egy egyedülálló hangulatú, többszintes családi házat. Az ingatlan egy eldugott, csendes, forgalomtól mentes utcában található, ahonnan lenyűgöző, elvehetetlen panoráma nyílik az erdős domboldalra. A ház ideális választás mindazok számára, akik egyszerre szeretnének a város közelében élni, mégis a természet ölelésében, teljes nyugalomban.A napfényes, déli fekvésű épület egy közel 1000 m²-es, vadregényes kerttel körülvett telken található, ahol idős tölgyfák, gondozott zöldfelületek és a környékre jellemző állatvilág – mókusok, sünök, madarak – teszik teljessé a természetközeli hangulatot. A belső terek több teraszon és erkélyen keresztül közvetlen kapcsolatban állnak a kerttel, így a természet közelsége a mindennapok része. A ház kialakítása lehetőséget ad több generáció kényelmes együttélésére is, valamint külön bejáratú lakrészt is tartalmaz, amely ideális lehet vendégek fogadására, bérbeadásra vagy akár otthoni munkavégzésre.Az ingatlan építészeti értéke kiemelkedő: Kossuth- és Ybl-díjas építész tervei alapján valósult meg, és megjelenhetett a Lakáskultúra magazin címlapján is. A nagyvonalúan kialakított belső terek különleges térélményt nyújtanak, a ház szinteltolásos szerkezete pedig természetes módon követi a környező domborzatot. Az otthon kényelmét és kikapcsolódási lehetőségeit tovább fokozza a saját szauna, amely kellemes kiegészítője a természetközeli életformának.A ház jelenlegi állapota felújítást igényel, ezáltal teljes mértékben az új tulajdonos elképzelései szerint formálható. A déli fekvés és a tető adottságai révén ideális lehet napelemes rendszer kiépítésére is, így a fenntartható otthon kialakításának minden feltétele adott. Az ingatlan megközelíthetősége is rendkívül kedvező: autóval a belváros mindössze 10 perc, tömegközlekedéssel körülbelül 30 perc alatt elérhető.Ez a ház ritka lehetőséget kínál azok számára, akik természetközeli, mégis város közeli otthonra vágynak Budapest egyik legzöldebb városrészében. Legyen szó több generáció együttéléséről, reprezentatív családi élettérről vagy egy inspiráló, kreatív otthon kialakításáról – ez az ingatlan kiemelkedő adottságokkal szolgál bármely élethelyzetre.További információért vagy megtekintés egyeztetéséért várom megkeresését bizalommal.
Hirdető adatai
Hirdető neve: Otthon Centrum
Kapcsolattartó: Otthon Centrum
Hirdető telefonszáma: -
Honlap: -

Üzenetet küldhet a hirdetőnek:
Az Ön neve:
Az Ön e-mail címe:
Üzenet: