Budapest, XI.kerület
 

Ingatlan adatai
Irányár: 206 766 000 Ft
Típus: lakás (újépítésű)
Kategória: eladó
Alapterület: 121 m2
Fűtés: -
Állapota: új
Szobák száma: 5
Építés éve: 2026
Szintek száma: -
Telekterület: -
Kert mérete: -
Erkély mérete: 7 m2
Felszereltség: -
Parkolás: -
Kilátás: kertre néző
Egyéb extrák:  
-
Részletes leírás
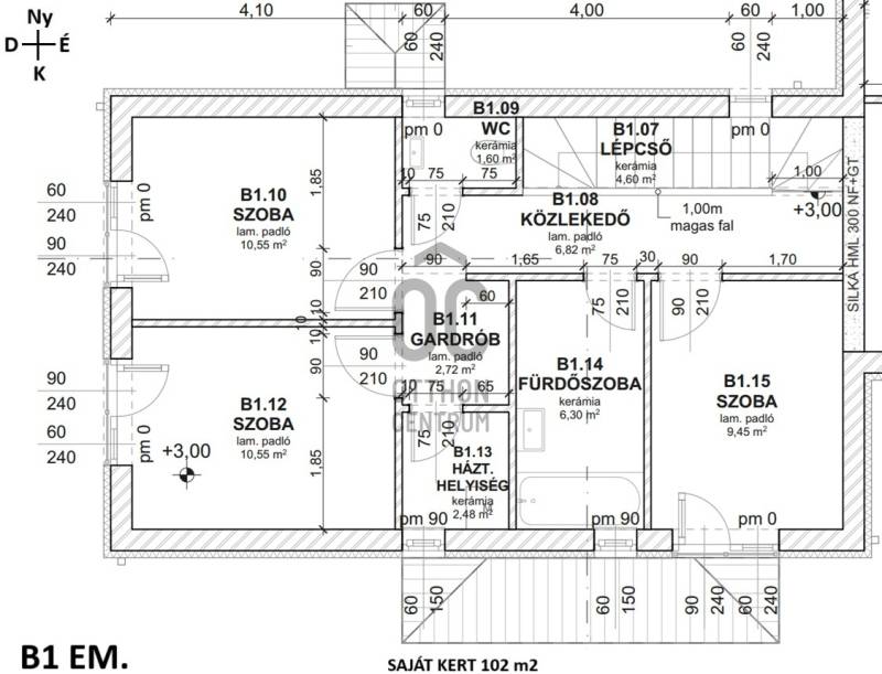
XI. SPANYOLRÉT, ÚJÉPÍTÉSŰ SORHÁZ SAJÁT KERTTEL, 2 AUTÓBEÁLLÓVALXI. Kerület SPANYOLRÉT KÖRZETÉBEN, CSENDES MELLÉKUTCÁBAN, teljesen SÍK, nagyjából téglalap alakú, 2000 m2 telken épülő, 2x3 épületből álló, SORHÁZI TÁRSASHÁZBAN kínálunk eladásra, egy K-i TÁJOLÁSÚ, SAJÁT KERTRE NÉZŐ, belső 2 szintes, 120,9 m2-es (7 m2 terasz 1/2 méretének a beszámítása mellett. A terasz nélküli nettó főfalakon belüli alapterület 117,4 m2), 5 SZOBÁS, 2 FÜRDŐSZOBÁS, 2 DB TELKEN BELÜLI FELSZÍNI BEÁLLÓVAL (+4 Mft/db), és 102 m2 SAJÁT KERTTEL rendelkező sorházi lakást.Fűtés-hűtés: HŐSZIVATTYÚS RENDSZER MELEGVÍZ TÁROLÓVAL, padlófűtéssel, illetve opcionálisan MENNYEZET HŰTÉS-FŰTÉSSEL. A FÖLDSZINTEN ÉS AZ EMELETEN FAN-COIL HŰTÉS KERÜL KIALAKÍTÁSRA. Külső nyílászárók: Műanyag profilú 5-6 légkamrás, kívül színes fólia, 3 rétegű üvegezéssel.TETŐN NAPELEM RENDSZER FOGADÁSÁRA ALKALMAS VÉDŐCSÖVEZÉS KERÜL KIALAKÍTÁSRA, napelem telepítése külön árajánlat alapján kerül kiépítésre.A földszinti lakótérben természetesen lehetőség van a 11,3 m2-es szoba mellőzésére, ami által egy tágasabb nappali konyha-étkező kialakítás lenne elérhető!Az ingatlan főfalak által behatárolt területe jelen pillanatban még a leendő vásárlói igényeknek megfelelően alakítható ki: válaszfalak elhelyezése, szobaszám, szobák mérete….stb. A kivitelező jó néhány társasházat már felépített, így természetesen több referenciamunkával is rendelkezik! AZ INGATLAN KULCSRAKÉSZ ÁLLAPOTA 2026 ÉV VÉGÉRE várható.Közlekedés: 40, 40B, 88, és 88A buszok gyalogosan 10 percre, M4 METRÓ KELENFÖLDI VÉGÁLLOMÁSA BUSSZAL 6-8 PERC ALATT ELÉRHETŐ.TISZTELT ÉRDEKLŐDŐ!TÖBB MINT 20 ÉVE FOGLALKOZOM INGATLANOK ÉRTÉKESÍTÉSÉVEL AZ OTTHON CENTRUMNÁL, AMENNYIBEN SZÁNDÉKÁBAN ÁLL INGATLANT ELADNI - A LEGRÖVIDEBB IDŐN BELÜL, GARANTÁLT JOGI, ÉS BANKI HÁTTÉRREL - KERESSEN BIZALOMMAL, HOGY EGY SZEMÉLYES HELYSZÍNI FELMÉRÉST KÖVETŐ INGYENES ÉRTÉKMEGÁLLAPÍTÁS UTÁN, EGYÜTT TUDJUNK MŰKÖDNI AZ ÖN INGATLANÁNAK AZ ELADÁSÁBAN IS!Projekt bemutatásaXI. SPANYOLRÉT, ÚJÉPÍTÉSŰ SORHÁZ SAJÁT KERTTEL, 2 AUTÓBEÁLLÓVALXI. Kerület SPANYOLRÉT KÖRZETÉBEN, CSENDES MELLÉKUTCÁBAN, teljesen SÍK, nagyjából téglalap alakú, 2000 m2 telken épülő, 2x3 épületből álló, SORHÁZI TÁRSASHÁZBAN kínálunk eladásra, 6 db SAJÁT KERTRE NÉZŐ, belső 2 szintes, 120 m2-es (7 m2 terasz 1/2 méretének a beszámítása mellett. A terasz nélküli nettó főfalakon belüli alapterület 117 m2), 5 SZOBÁS, 2 FÜRDŐSZOBÁS, 2 DB TELKEN BELÜLI FELSZÍNI BEÁLLÓVAL (+4 Mft/db), és 102 - 260 m2 SAJÁT KERTTEL rendelkező sorházi lakásokat.Fűtés-hűtés: HŐSZIVATTYÚS RENDSZER MELEGVÍZ TÁROLÓVAL, padlófűtéssel, illetve opcionálisan MENNYEZET HŰTÉS-FŰTÉSSEL. A FÖLDSZINTEN ÉS AZ EMELETEN FAN-COIL HŰTÉS KERÜL KIALAKÍTÁSRA. Külső nyílászárók: Műanyag profilú 5-6 légkamrás, kívül színes fólia, 3 rétegű üvegezéssel.TETŐN NAPELEM RENDSZER FOGADÁSÁRA ALKALMAS VÉDŐCSÖVEZÉS KERÜL KIALAKÍTÁSRA, napelem telepítése külön árajánlat alapján kerül kiépítésre.A földszinti lakótérben természetesen lehetőség van a plusz szoba mellőzésére, ami által egy tágasabb nappali konyha-étkező kialakítás lenne elérhető!Az ingatlan főfalak által behatárolt területe jelen pillanatban még a leendő vásárlói igényeknek megfelelően alakítható: válaszfalak elhelyezése, szobaszám, szobák mérete….stb. A kivitelező jó néhány társasházat már felépített, így természetesen több referenciamunkával is rendelkezik! AZ INGATLAN KULCSRAKÉSZ ÁLLAPOTA 2026 ÉV VÉGÉRE várható.Közlekedés: 40, 40B, 88, és 88A buszok gyalogosan 10 percre, M4 METRÓ KELENFÖLDI VÉGÁLLOMÁSA BUSSZAL 6-8 PERC ALATT ELÉRHETŐ.TISZTELT ÉRDEKLŐDŐ!TÖBB MINT 20 ÉVE FOGLALKOZOM INGATLANOK ÉRTÉKESÍTÉSÉVEL AZ OTTHON CENTRUMNÁL, AMENNYIBEN SZÁNDÉKÁBAN ÁLL INGATLANT ELADNI - A LEGRÖVIDEBB IDŐN BELÜL, GARANTÁLT JOGI, ÉS BANKI HÁTTÉRREL - KERESSEN BIZALOMMAL, HOGY EGY SZEMÉLYES HELYSZÍNI FELMÉRÉST KÖVETŐ INGYENES ÉRTÉKMEGÁLLAPÍTÁS UTÁN, EGYÜTT TUDJUNK MŰKÖDNI AZ ÖN INGATLANÁNAK AZ ELADÁSÁBAN IS!
Hirdető adatai
Hirdető neve: Otthon Centrum
Kapcsolattartó: Csopaki Balázs
Hirdető telefonszáma: +36 70 716 8476
Honlap: -

Üzenetet küldhet a hirdetőnek:
Az Ön neve:
Az Ön e-mail címe:
Üzenet: