Pest megye, Ráckeve
 

Ingatlan adatai
Irányár: 75 900 000 Ft
Típus: ház
Kategória: eladó
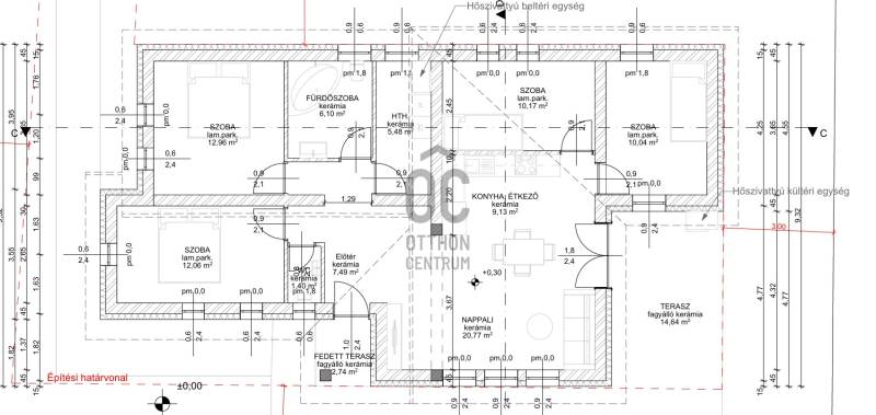
Alapterület: 96 m2
Fűtés: -
Állapota: új
Szobák száma: 5
Építés éve: 2026
Szintek száma: -
Telekterület: 600 m2
Kert mérete: 600 m2
Erkély mérete: 15 m2
Felszereltség: -
Parkolás: -
Kilátás: -
Egyéb extrák:  
-
Részletes leírás
Eladó újépítésű önálló családi ház Ráckevén• téglaépítésű• nettó 95.6 m2• amerikai konyhás nappali (30m2) + 4 hálószobával• fűtése: hőszivattyú + padlófűtés• választható burkolatok• telek: 592 m2• hitel, CSOK, Otthon Start igényelhetőVárható átadás: 2026 tavasz
Hirdető adatai
Hirdető neve: Otthon Centrum
Kapcsolattartó: Joó Krisztina
Hirdető telefonszáma: +36 70 469 3111
Honlap: -

Üzenetet küldhet a hirdetőnek:
Az Ön neve:
Az Ön e-mail címe:
Üzenet: