Budapest, X.kerület
 

Ingatlan adatai
Irányár: 21 900 000 Ft
Típus: lakás (tégla)
Kategória: eladó
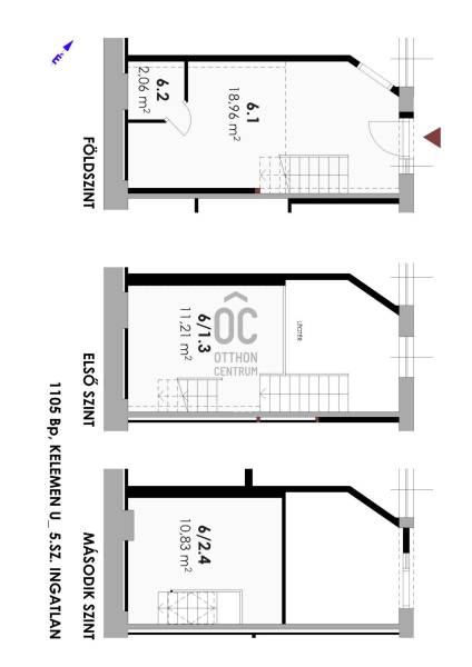
Alapterület: 43 m2
Fűtés: -
Állapota: -
Szobák száma: 3
Építés éve: 1950
Szintek száma: -
Telekterület: -
Kert mérete: -
Erkély mérete: -
Felszereltség: -
Parkolás: -
Kilátás: udvari
Egyéb extrák:  
-
Részletes leírás
SAJÁT KERTRÉSSZEL!Hihetetlen áron, London belvárosát idéző stílusban, belső 3 szintes, 3 szobás ingatlan, Alacsony fenntartással, verhetetlen áron vásárolhat nagyobb, teljesen új életteret! Kap mellé egy életérzést is! Frissen felújított, Ön költözik be elsőnek!Új gépészet, elektromos hálózat, világítástechnika, nyílászárók, bejárati ajtó, hideg és meleg burkolatok! Földszintes lakóépületben, kiváló lokációval, csendes, kellemes zöld fás környezetben, parkok ölelésében, egyirányú utcában található!Az ingatlan használati megosztási szerződéssel kerül értékesítésre. Nem hitelezhető! Hívjon és megmutatom Önnek minden értelemben ÚJ otthonát, irodáját, befektetési ingatlanát! Hívjon akár hétvégén is! Mutatom!
Hirdető adatai
Hirdető neve: Otthon Centrum
Kapcsolattartó: Mózes Adrienne
Hirdető telefonszáma: +36 70 388 6211
Honlap: -

Üzenetet küldhet a hirdetőnek:
Az Ön neve:
Az Ön e-mail címe:
Üzenet: